|
未入居物件
[価格]
2,548万円
|
||||
|---|---|---|---|---|
| 所在地 | 沿線/駅 バス徒歩 |
構造 間取 |
土地面積 建物面積 |
築年月 引渡時期 |
| 上益城郡嘉島町鯰 | 上益城郡/嘉島町 |
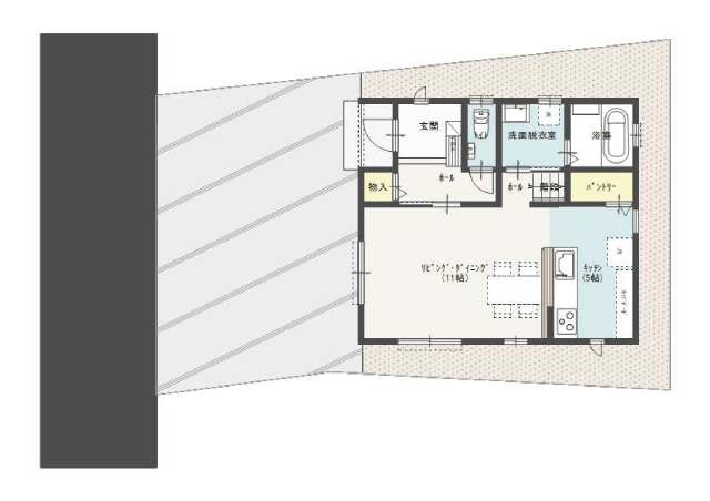
木造 3LDK |
112.79m² 91.08m² |
2023/07 相談 |

| 物件番号 | 4494 | ||
|---|---|---|---|
| 交通 | 上益城郡 嘉島町
熊本市 その他 |
学区 | 嘉島西小学校 300m 嘉島中学校 2,000m |
| 建ぺい率 | 60% | 容積率 | 200% |
| 地目 | 宅地 | 用途地域 | 第二種住居地域 |
| 間取詳細 | 取引態様 | 売主 | |
| 土地権利 | 所有権 | 借地料 | - |
| 諸費用 | 私道面積 | - | |
| 接道 | 西 16m(幅員) 公道 8m(接面) | セットバック | |
| 特色 | 電気、下水道、側溝、駐車場、オール電化 | ||
| 取引条件有効期限 | 2025年12月01日 | ||